1.1. Расчет однофазного сетевого трансформатора с частотой сети 50 Гц
Исходные данные для расчета однофазного сетевого трансформатора с частотой сети 50 Гц
Для приведенной на рис. 1.1 схемы трансформатора выбрать магнитопровод, рассчитать параметры обмоток и определить массу трансформатора.
Рис. 1.1. Схема подключения однофазного сетевого трансформатора.
Таблица 1.1
Исходные данные для расчета
однофазного сетевого трансформатора с частотой сети 50 Гц
| № варианта (две последние цифры зачетной книжки) | Напряжения на вторичных обмотках, В | Токи в нагрузках, А | Максимальная магнитная индукция Вm, Тл | Средняя плотность тока в обмотках gср, А/мм2 | ||
| U2.1 | U2.2 | I2.1 | I2.2 | |||
| 1 | 2 | 3 | 4 | 5 | 6 | 7 |
| 01, 34, 67 | 5 | 300 | 6 | 0,1 | 1,3 | 2,4 |
| 02, 35, 68 | 5 | 400 | 8 | 0,1 | 1,3 | 2,3 |
| 03, 36, 69 | 8 | 350 | 5 | 0,2 | 1,35 | 2,2 |
| 04, 37, 70 | 10 | 250 | 8 | 0,2 | 1,35 | 2,1 |
| 05, 38, 71 | 10 | 300 | 7 | 0,2 | 1,35 | 2,1 |
| 06, 39, 72 | 10 | 400 | 9 | 1,1 | 1,35 | 2,2 |
| 07, 40, 73 | 12 | 500 | 5 | 0,2 | 1,35 | 2,0 |
| 08, 41, 74 | 12 | 300 | 6 | 0,2 | 1,35 | 2,0 |
| 09, 42, 75 | 12 | 400 | 10 | 0,15 | 1,35 | 1,9 |
| 10, 43, 76 | 15 | 400 | 8 | 0,25 | 1,35 | 1,9 |
| 11, 44, 77 | 15 | 500 | 10 | 0,15 | 1,35 | 1,9 |
| 12, 45, 78 | 15 | 300 | 12 | 0,2 | 1,35 | 1,8 |
| 13, 46, 79 | 20 | 400 | 8 | 0,2 | 1,35 | 1,8 |
| 14, 47, 80 | 20 | 500 | 10 | 0,15 | 1,35 | 1,7 |
| 15, 48, 81 | 20 | 450 | 10 | 0,3 | 1,3 | 1,7 |
| 16, 49, 82 | 25 | 800 | 8 | 0,15 | 1,3 | 1,7 |
| 17, 50, 83 | 25 | 700 | 10 | 0,2 | 1,25 | 1,65 |
| 18, 51, 84 | 25 | 600 | 12 | 0,15 | 1,25 | 1,6 |
| 19, 52, 85 | 30 | 400 | 8 | 0,3 | 1,25 | 1,6 |
| 20, 53, 86 | 30 | 500 | 10 | 0,2 | 1,25 | 1,6 |
| 21, 54, 87 | 30 | 600 | 12 | 0,15 | 1,25 | 1,5 |
| 22, 55, 88 | 40 | 300 | 8 | 0,3 | 1,25 | 1,5 |
| 23, 56, 89 | 40 | 400 | 10 | 0,25 | 1,2 | 1,5 |
| 24, 57, 90 | 40 | 500 | 11 | 0,2 | 1,2 | 1,5 |
| 25, 58, 91 | 50 | 800 | 8 | 0,15 | 1,2 | 1,5 |
| 26, 59, 92 | 50 | 600 | 10 | 0,15 | 1,2 | 1,45 |
| 27, 60, 93 | 50 | 700 | 12 | 0,1 | 1,2 | 1,45 |
| 28, 61, 94 | 60 | 500 | 8 | 0,3 | 1,2 | 1,45 |
| 29, 62, 95 | 60 | 800 | 10 | 0,2 | 1,2 | 1,4 |
| 30, 63, 96 | 60 | 700 | 10 | 0,1 | 1,2 | 1,4 |
| 31, 64, 97 | 20 | 900 | 15 | 0,1 | 1,3 | 1,7 |
| 32, 65, 98 | 25 | 800 | 20 | 0,2 | 1,25 | 1,5 |
| 33, 99, 66, 00 | 15 | 700 | 20 | 0,1 | 1,3 | 1,6 |
Методические указания и пример расчета однофазного сетевого трансформатора с частотой сети 50 Гц
Схема подключения трансформатора приведена на рис.
1.1.Исходные данные для расчета:
напряжение на вторичных обмотках – U2.1 = 15 B, U2.2 = 400 B;
токивнагрузках – I2.1 =10 A, I2.2 = 0,2 A;
максимальная магнитная индукция в магнитопроводе – Вm = 1,35 Тл;
средняя плотность тока в обмотках – gср = 1,9 А/мм2;
частота сети – fc = 50 Гц.
1. Выбор магнитопровода
Мощность, отдаваемая трансформатором в нагрузку:
,
.
Размеры магнитопровода, необходимые для получения от трансформатора заданной мощности, могут быть найдены на основании выражения
, (1.1)
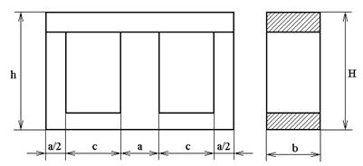
где Sс – геометрическая площадь сечения сердечника (рис. 1.2);
Sок – геометрическая площадь сечения окна (рис. 1.2);
Кзм – коэффициент заполнения по меди, равный отношению площади сечения меди Sм обмоток к геометрической площади окна магнитопроводаSок, для броневых пластинчатых магнитопроводов,
Кзм = 0,2 ¸ 0,4;
Кзс – коэффициент заполнения по стали, равный отношению площади сечения стали Sст к геометрической площади сечения сердечника Sс, Кзс = 0,85 ¸ 0,95.
Рис. 1.2. Броневой пластинчатый магнитопровод: Sок = hc, Sок = ab.
Выбираем Кзм = 0,3, Кзс = 0,9.
Подставляем в (2.1) численные значения параметров:
.
Из табл. 2.8 выбираем магнитопровод с ближайшим большим значением SсSок = 328 см4; масса магнитопроводаGст = 2,53 кг; Sс = 12,8 см2; средняя длина магнитной силовой линии lc = 27,4 см.
2. Расчет обмоток трансформатора
Действующее значение ЭДС первичной обмотки трансформатора:
, (1.2)
где DU1 – относительное падение напряжения на первичной обмотке.
Значения DU1 выбираем из табл. 2.2.
Таблица 1.2
Относительные падения напряжений
на обмотках трансформаторов
| Час-тота, Гц | Конструк- циямагнитопровода | Вели-чина | Суммарная мощность вторичных обмоток SР2, В?А | |||||
| 5-15 | 15-50 | 50-150 | 150-300 | 300-1000 | 1000-2500 | |||
| 50 | Броневая | DU1% | 20-13 | 13-6 | 6-4,5 | 4,5-3 | 3-1 | - |
| DU2% | 25-18 | 18-10 | 10-8 | 8-6 | 6-2 | - | ||
| Стержне-вая | DU1% | 18-12 | 12-5,5 | 5,5-4 | 4-3 | 3-1 | 1-0,8 | |
| DU2% | 33-17 | 17-9 | 9-6 | 6-4 | 4-2 | 2-1,0 | ||
| 400 | Броневая | DU1% | 10-8 | 8-4 | 4-1,5 | 1,5-1,0 | 1,0-0,5 | 0,5 |
| DU2% | 8,5-10 | 10-5 | 5-2,0 | 2,0-1,2 | 1,2-0,5 | 0,5 | ||
| Стержне- вая | DU1% | 7-5 | 5-2 | 2-1,0 | 1,0-1,0 | 1,0-0,5 | 0,5 | |
| DU2% | 8-6,5 | 6,5-3 | 3-1,5 | 1,5-1,0 | 1,0-0,5 | 0,4 | ||
Для рассчитанной мощности выбираем DU1 =3,75 %:
.
Действующая ЭДС одного витка:
, (1.3)
где Кф – коэффициент формы напряжения первичной обмотки, для синусоидального напряжения Кф = 1,11.
.
Число витков первичной обмотки (округляется до целого числа):
, (1.4)
Действующая ЭДС вторичных обмоток Е2.1 и Е2.2 под нагрузкой
, (1.5)
где DU2 = 7% (см. табл. 2.2):
;
.
Число витков вторичных обмоток:
;
.
Активная составляющая тока первичной обмотки, равная сумме токов нагрузки, пересчитанных на первичную обмотку:
, (1.6)
Активная составляющая тока первичной обмотки, обусловленная потерями в магнитопроводе:
, (1.7)
где Рст – удельные потери в сердечниках из трансформаторных сталей на частоте 50 Гц. Значение Рст = 3,7 Вт/кг выбираем из табл. 1.3:
Таблица 1.3
Удельные потери в броневых сердечниках
из трансформаторных сталей на частоте 50 Гц
| Магнитная индукция Bm, Тл | 1,2 | 1,25 | 1,3 | 1,35 |
| Удельные потери Рст, Вт/кг | 2,5 | 2,8 | 3,2 | 3,7 |
.
Реактивная составляющая тока первичной обмотки, равная току намагничивания трансформатора:
, (1.8)
где qст – удельная намагничивающая мощность. Из табл. 2.4 выбираем qст = 50 В?А/кг:
Таблица 1.4
Удельная намагничивающая мощность для броневых сердечников из трансформаторных сталей на частоте 50 Гц
| Магнитная индукция Bm, Тл | 1,2 | 1,25 | 1,3 | 1,35 |
| Удельная намагничивающая мощность qст, В?А/кг | 25 | 30 | 40 | 50 |
.
Полный ток первичной обмотки
, (1.9)
.
Ток холостого хода трансформатора
, (1.10)
.
Сечение проводов обмоток трансформатора
; (1.11)
,
,
.
Диаметр проводов обмоток трансформатора:
; (1.12)
,
,
.
Рассчитанные значения диаметров проводов округляются до ближайшего большего стандартного значения (обычно до сотых долей миллиметра). Тогда
;
;
.
Еще по теме 1.1. Расчет однофазного сетевого трансформатора с частотой сети 50 Гц:
- 1.2. Расчет однофазного сетевого трансформатора с частотой сети 400 Гц
- Методические указания и пример расчета однофазного сетевого трансформатора с частотой сети 400 Гц
- Расчет трансформаторов питания
- Считаю, что решением фундаментальной проблемы безопасности в Интернете может являться введение индивидуальной идентификации каждого пользователя в сети или в части сети
- 2.1. Общие сведения о трансформаторах
- Многоуровневый сетевой маркетинг. Торговля на дому
- 3.3. Понятие сетевой войны и ее инструментарий
- Определение основных вех проекта и сетевое планирование
- 6.3.14. Сетевой фаст-фуд может потеснить приморских рестораторов
- Частота синдрома ВПУ
- Влияние перепрограммирования частоты импульсов на уровень тревоги
- Определение собственной частоты сердечного ритма
- Влияние нарушений (осложнений) ЭКС на частоту и выраженность тревоги
- 6.3. АКТИВНЫЕ СИСТЕМЫ МИРА - АККУМУЛЯТОРЫ И ТРАНСФОРМАТОРЫ И ИХ РОЛЬ В ПОЗНАНИИ СУЩНОСТИ ПРИРОДНЫХ И СОЦИАЛЬНЫХ ПРОЦЕССОВ
- МАГНИТНАЯ ЧАСТОТА В РЕЗОНАНСЕ
- Тема 3. Национальная безопасность в условиях сетевой войны против России
- 1.2. Параметры сети питания электроэнергией